Estimation
&
conseils
gratuits
Logo SRL PACIMMO
SRL PACIMMO
0484 / 325 325
RUE DE PONT-A-CELLES, 10 - 6238 Luttre

Réf. : 7111103  Maison 3 faç de +-160m² sur 5a20, 3/4 ch. jardin, terrasse. à 7160 Chapelle-lez-Herlaimont Piéton
PACIMMO "Un service tout compris" vous propose une estimation gratuite et sans engagement de votre maison ou appartement.

Maison 3 façades avec accès à rue de +- 160 m² sur 5a20, 3/4 chambres, remises, jardin. Comprenant :

Au s-s: Caves ( +-18 et 2 m²).
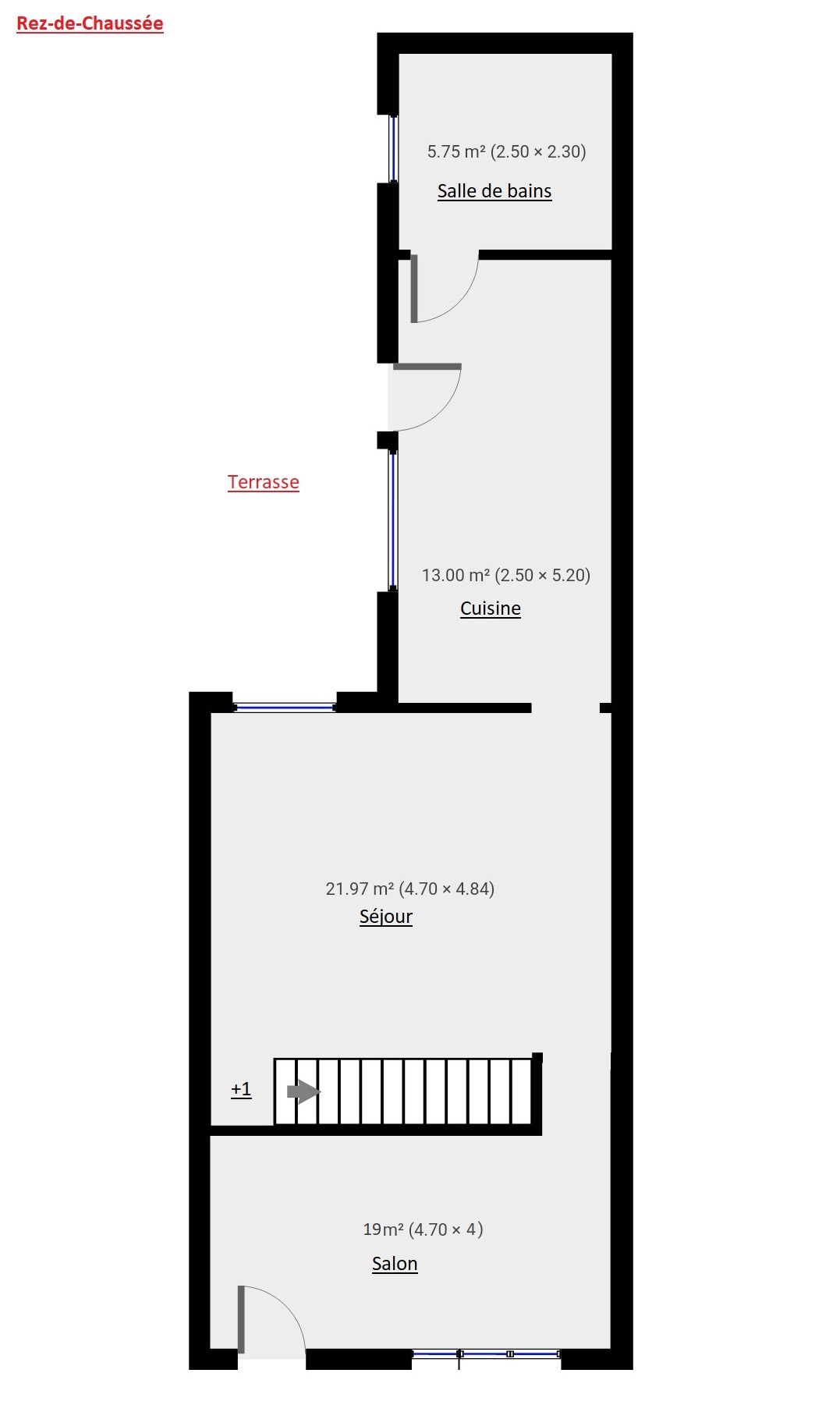
Au r-d-c: Salon (+-13 m²), séjour (+-22 m²), Cuisine équipée (+-13 m²), salle de bains (+-6 m²),-
Etage 1: Hall de nuit (+-1 m²), Chambre 1 (+-19 m²), Chambre 2 (+-22 m²), Hall de grenier (+-1 m²)
Etage 2: Grenier aménagé en chambre(+-40 m²),-
Divers: DV Bois/PVC, atelier, remise, Raccordée aux égouts, CCG, PEB E 20210614033333 - EP TOT 76.565 kWh/an - EPS 423 kWh/m²/an,- 2 kg CO2/m².an - RCNI : 356,00 euros

Prix: Faire offre à partir de 204.900€ sous réserve d'acceptation des propriétaires. Pour rappel, le pouvoir décisionnel appartient au vendeur. Ce dernier étant libre d'accepter ou de refuser n'importe quelle offre en cours à tout moment, quel que soit son montant, qu'elle soit la plus basse ou la plus élevée et quel que soit son ordre d'arrivée.

Publicité à caractère non contractuel et ne constituant pas une offre
Photos
Aspects Financiers et légaux
Offre à partir de : 204 900 €
Revenu cadastral : 356 €
Section : a
Numéro : 23w10
Etat du bien : bon état
Disponible : à l'acte
Date de disponibilité : 01/01/2026
Description extérieure
Année de construction : 1899
Année de rénovation : 2025
Nombre de façades : 3
Surface du terrain : 520 m²
Terrasse
Jardin
Certificats et attestations
PEB spécifique : 423.00 kWh/m².an
PEB total : 76565 kWh/an
CO2 : 2 kg C02/m².an
Validité certificat : 06/2031
Numéro du certificat : 20210614033333
Certificat électrique : oui, non conforme
Attestation de sol réalisée (BDES)
Facilités
Raccordements : égout électricité gaz eau
Description intérieure
Surface habitable : 160.00 m²
Séjour : 22.00 m²
Salle à manger : 13.00 m²
Cuisine : 13.00 m²
Chambre 1 : 22.00 m²
Chambre 2 : 19.00 m²
Chambre 3 : 40.00 m²
1 salle(s) de bains
1 salle(s) de douches
Rue Laurent 25 - 7160 Chapelle-lez-Herlaimont Piéton
 
---------- Document informatif et non contractuel ----------
Le positionnement est donné à titre indicatif et n'est absolument pas garanti



Imprimer

Contacter l'agence