Estimation
&
conseils
gratuits
Logo SRL PACIMMO
SRL PACIMMO
0484 / 325 325
RUE DE PONT-A-CELLES, 10 - 6238 Luttre

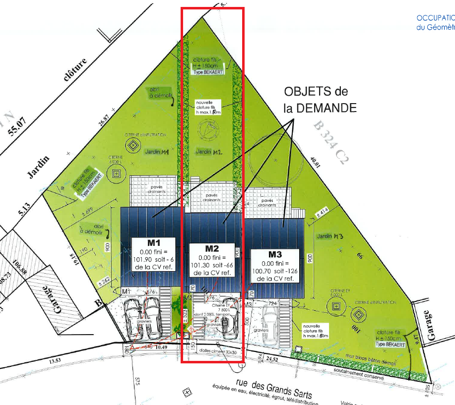
Réf. : 7241319  Maison livrée finie de +-160m² sur 2a33. 3ch, jard., park 1v à 6230 Pont-à-Celles
PACIMMO "Un service tout compris" vous propose une estimation gratuite et sans engagement de votre maison ou appartement.

Maison livrée finie 2f. ±160m² 2a33ca, 3 chambres, jardin, terrasse et emplacement de parking 1V,.
Sous-sol: vides ventilés
Rez-de-chaussée: Hall d'entrée, WC, débarras, séjour, cuisine équipée
1er étage: Hall de nuit, 3 chambres et une salle de bains
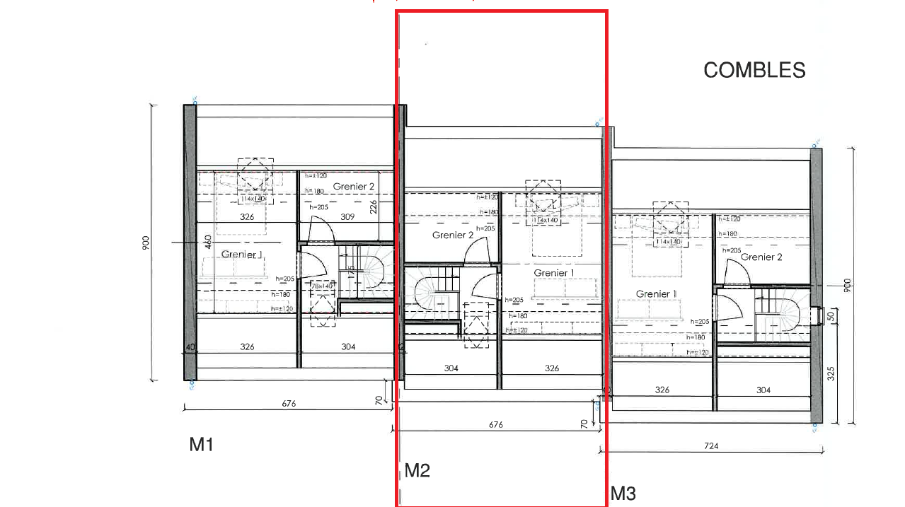
2ème étage: Grenier aménageable en chambre

RCNI: à déterminer
Prix: Faire offre à partir de 289.900,00€ sous réserve d'acceptation des propriétaires.
Photos
Aspects Financiers et légaux
Offre à partir de : 289 900 €
Section : b
Numéro : 321 W P0000
Etat du bien : construction achevée
Disponible : à la livraison
Date de disponibilité : 01/06/2026
Description extérieure
Année de construction : 2025
Année de rénovation : 2025
Nombre de façades : 2
Surface du terrain : 233 m²
Terrasse
Jardin
Parking extérieur
Nombre de place de parking : 1
Certificats et attestations
Certificat électrique : non
Attestation de sol réalisée (BDES)
Facilités
Raccordements : égout électricité gaz eau
Description intérieure
Surface habitable : 160.00 m²
Séjour : 31.00 m²
Cuisine : 11.00 m²
Chambre 1 : 13.00 m²
Chambre 2 : 13.00 m²
Chambre 3 : 12.00 m²
1 salle(s) de bains
1 salle(s) de douches
Parking 1 voiture(s)
Rue des Grands Sarts 41 - 6230 Pont-à-Celles
 
---------- Document informatif et non contractuel ----------
Le positionnement est donné à titre indicatif et n'est absolument pas garanti



Imprimer

Contacter l'agence